
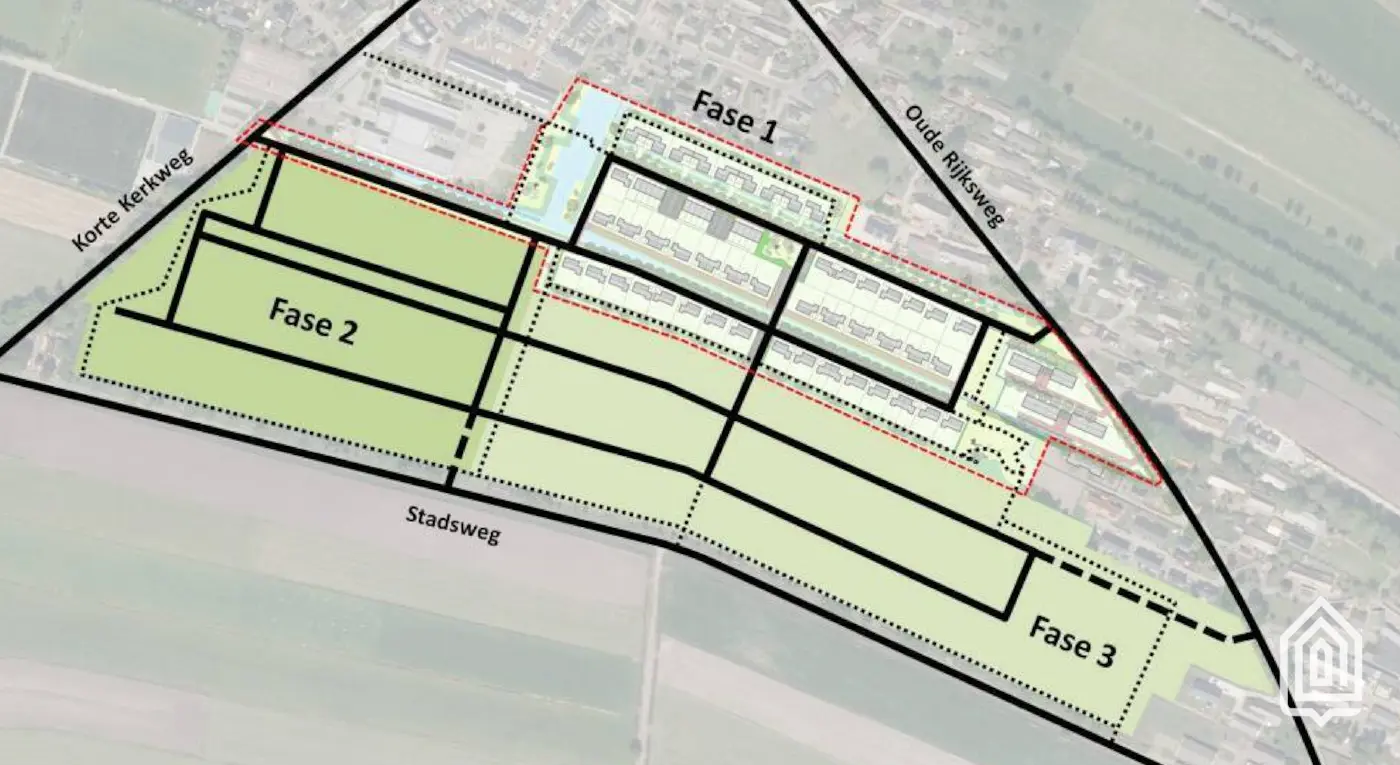
Gemeente Staphorst start met de plannen voor fase 2 van Rouveen Zuid. In dit gedeelte van de nieuwe woonwijk is ruimte voor ongeveer 100 woningen.
Fase 2 en 3 vormen in de toekomst samen de nieuwe zuidrand van het dorp. Daarom maken we eerst een stedenbouwkundige visie voor fase 2 en 3. Dit is een globale schets van hoe de woonwijk eruit kan komen te zien.
Wij willen graag een woonwijk ontwerpen die past bij Rouveen en (toekomstige) bewoners. Daarom horen we graag wat u belangrijk vindt. Wat zijn uw ideeën en aandachtspunten voor de nieuwe woonwijk? Wat zijn uw woonwensen of aan welke type woningen is volgens u behoefte? Uw mening helpt ons bij het maken van de plannen.
Hoe kunt u meedenken?
U kunt meedenken op 2 manieren:
Op de inloopavond
U bent van harte welkom op de inloopavond op:
- Dinsdagavond 23 september 2025
- Vrije inloop tussen 17.30 en 20.00 uur
- D’ Olde Skoele Rouveen, Oude Rijksweg 427 te Rouveen
Aanmelden kan via www.staphorst.nl/rouveenzuid-fase2
Digitaal meedenken
U kunt digitaal meedenken tot en met 26 september 2025.
Vul het formulier in via www.staphorst.nl/rouveenzuid-fase2
Hoe gaat het daarna verder?
Stap 1: Stedenbouwkundige visie maken
Met de inbreng van (toekomstige) bewoners gaat de gemeente aan de slag om de visie te maken voor fase 2 en 3. De gemeente overlegt ook met de provincie en het waterschap.
Stap 2: Stedenbouwkundig plan maken
Wanneer de visie klaar is, maakt de gemeente voor fase 2 een concept stedenbouwkundig plan. Hierin staat precies waar de huizen komen, waar de wegen lopen en waar plek is voor parkeerplaatsen, groen en water. Dan kunnen de (toekomstige) bewoners van Rouveen Zuid opnieuw hun mening geven.
De gemeente maakt ook een financiële berekening van het stedenbouwkundig plan. De gemeenteraad neemt vervolgens een besluit over het stedenbouwkundig plan en het geld.
Het stedenbouwkundig plan voor fase 3 maakt de gemeente over een aantal jaren. Dan kijken we opnieuw naar wat voor soort woningen dan nodig zijn en hoe we de openbare ruimte het beste kunnen inrichten.
Stap 3: Omgevingsplan en omgevingsvergunning
Om echt te kunnen bouwen in Rouveen Zuid Fase 2, zijn ook nog ruimtelijke procedures nodig voor wijzigen van het omgevingsplan en het verlenen van de omgevingsvergunningen.
Start aanleg fiets/voetgangersbrug
Er komt een brug over het water tussen de Multifunctionele Combischool Rouveen (MCR) en de woonwijk (Fase 1). Deze brug is bedoeld voor fietsers en voetgangers.
Op 22 september starten we met de bouw van de brug. Om dit te kunnen doen, maken we tijdelijk een dam in het water. We verwachten dat de brug eind oktober klaar is.

Tip de redactie via WhatsApp! Voeg ’Weblog Staphorst' toe als contact in uw telefoon,
